--   |  设为首页

帮忙装修网

中山

[切换]

中山140平的现代风三居室,卧室好几个落地窗

来自:中山帮忙装修网 日期:2022-08-22 18:48:40 208761 次 分享到:
导读:
案例整体风格为现代简约风,设计师以素雅的灰色和白色为主。中山帮忙装修网公司分享。

今天中山帮忙装修网公司分享是一套建筑面积140平的三居室案例,整体风格为现代简约风,设计师以素雅的灰色和白色为主,通过合理的布置来缓解了户型的缺憾,特别是这个不规则的主卧室,装好之后反而让人感觉更加大气、时尚。

微信图片_20220822091629.jpg

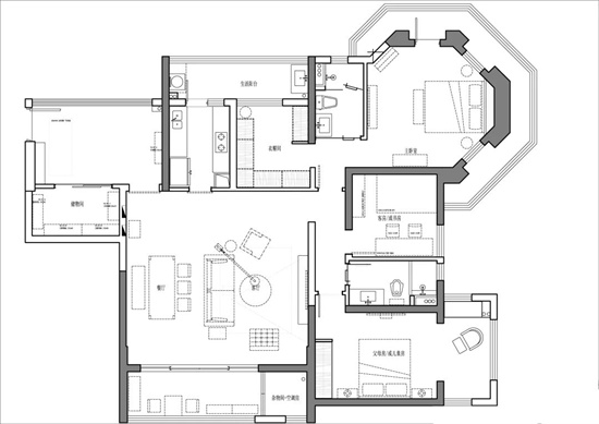
平面布置图

微信图片_20220822091635.jpg

入户是一个独立的门厅区域,在入户门的正对面做了矮鞋柜,鞋柜的底部留空方便摆放更换的鞋子,上方摆放绿植和火烈鸟装饰画,也起到端景台的作用。

微信图片_20220822091638.jpg

走过玄关就到了开放式的客餐厅空间,原木风的餐桌椅和布艺餐椅结合,墙面的绿植挂画和角落里的绿植相互呼应,整个餐厅简约而又自然。

微信图片_20220822091640.jpg

客厅电视背景墙刷成了灰色,暖灰色的沙发和米白色的休闲椅结合,黑白灰为主的客厅空间给人一种简约的格调感。

微信图片_20220822091642.jpg

大小不一的两个黑色圆形茶几带来了更多的储物选择,在走廊的墙面上做了一款简洁的挂钟装饰,用射灯来突显这个装饰空间。

微信图片_20220822091645.jpg

厨房内部是设计成了双一字橱柜的布局,毕竟厨房还通往了生活阳台,以灰色为主的厨房空间,显得简洁而又大方。

微信图片_20220822091650.jpg

主卧室三处落地窗的窗帘柔化了户型的棱角,而床和两侧床头柜的布置也最大限度地契合了户型,显得自然且协调。在这里,户型不再是限制或是缺陷,更像是一道点睛之笔。

微信图片_20220822091652.jpg

次卧的设计会更加的活泼、可爱一些,浅灰色的墙面和原木风的家具、粉色的床品组成了这样一个简单、温馨而又浪漫的空间。

微信图片_20220822091654.jpg

卫生间内部干湿分离,大面积的镜柜下方还做了藏光的设计,让这个卫生间显得更加的明亮和宽敞。

微信图片_20220822091656.jpg

阳台铺上灰色的地砖,耐脏耐看又耐用,搭配一套休闲桌和金属椅子、绿植等,充满了写意与舒适的感觉。

装修预算不够?快来申请装修贷款!月息低至2.5厘。帮忙装修网为解决业主的装修资金难题,特与银行合作推出“装修贷”,一站轻松办理:18824725983 吴先生

长按二维码关注"帮忙装修网",了解更多装修资讯↓↓↓

或拨打免费热线:13822775923

已成功招标53521